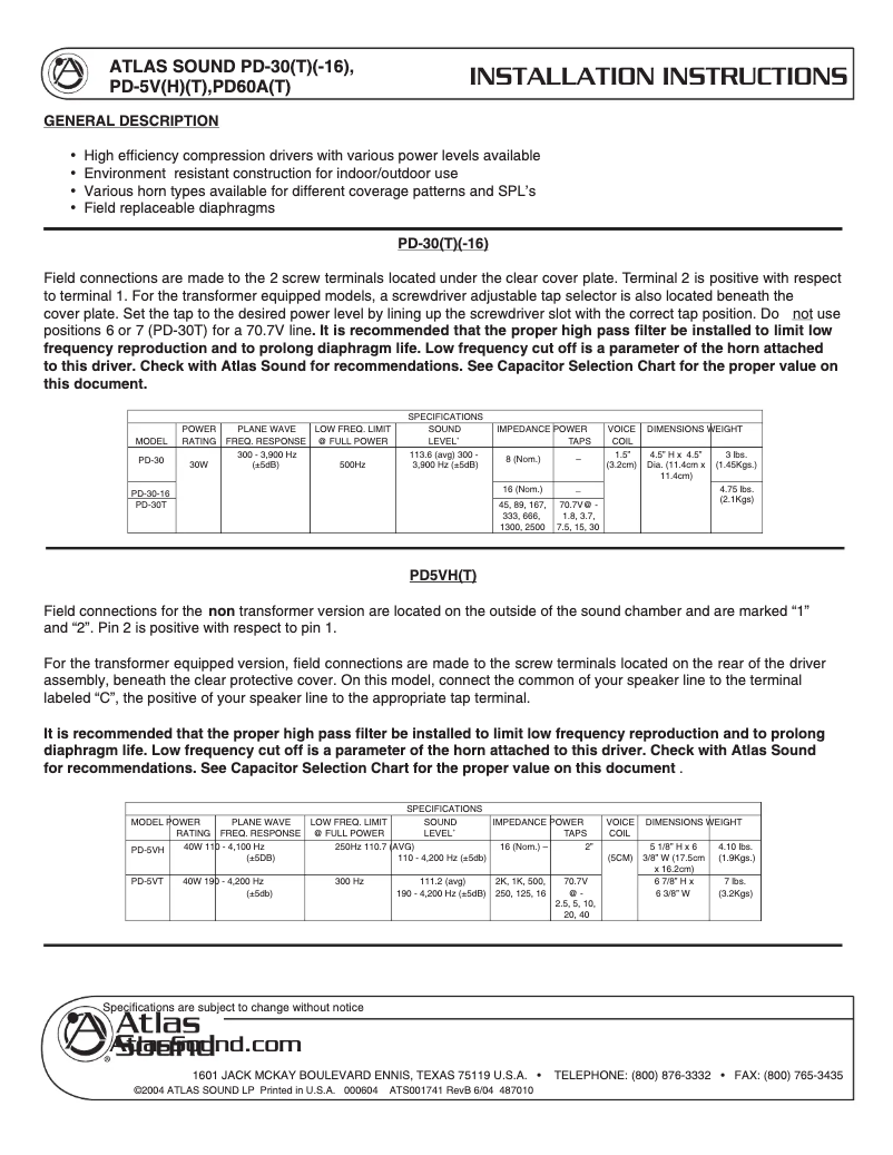
Présentation de la notice : Guide d'installation Haut-parleur Atlas Sound PD-30T
Recherchez parmi les 2 pages de la notice : Guide d'installation Haut-parleur Atlas Sound PD-30T pour trouver les informations qu'il vous manque. Vous ne trouvez pas les réponses à vos questions ? Réservez une vidéo assistance en moins de 2 minutes.
Caractéristiques
Marque | Atlas Sound |
Modèle | PD-30T |
Catégorie | Audio |
Type de produit | Haut-parleur |
Nombre de pages | 2 Pages |
Type de fichier |
