Présentation de la notice : Manuel utilisateur Bateau Bestway Hydro-Force 65047
Recherchez parmi les 56 pages de la notice : Manuel utilisateur Bateau Bestway Hydro-Force 65047 pour trouver les informations qu'il vous manque. Vous ne trouvez pas les réponses à vos questions ? Réservez une vidéo assistance en moins de 2 minutes.
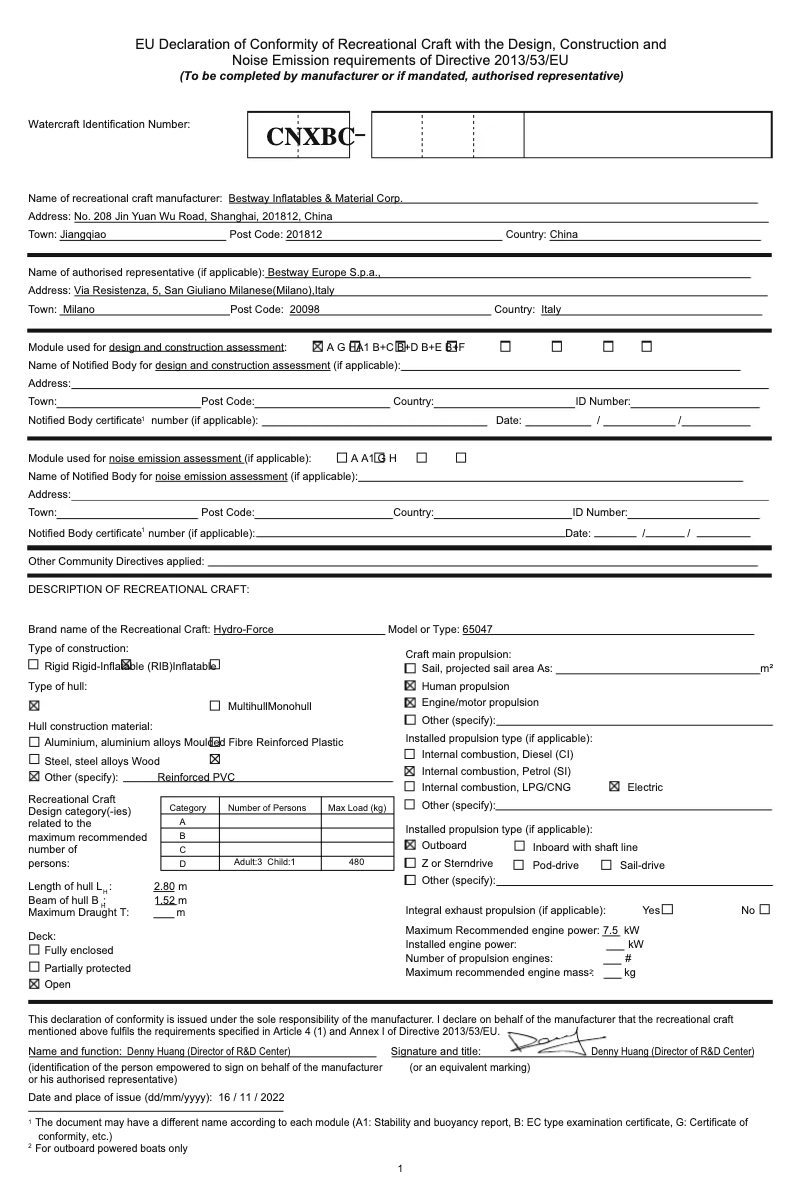
Caractéristiques
Marque | Bestway |
Modèle | Hydro-Force 65047 |
Catégorie | Bateaux et accessoires |
Type de produit | Bateau |
Nombre de pages | 56 Pages |
Type de fichier |
