Miniature du produit Fiche technique

Fiche technique : BORA BIA cuisinière

BORA Appareils ménagers Cuisinière

De quoi avez-vous besoin ?

En validant, je déclare accepter sans réserve les Conditions Générales et la Politique de confidentialité de wenony.ch. En validant les informations, je confirme commander un contrat WeNony Premium au tarif de 0,90 CHF le premier mois, puis au tarif de 49,00 CHF par mois avec un engagement de 12 mois. Je confirme être habilité à engager l’entreprise dans ces conditions.

Présentation de la notice : Fiche technique Cuisinière BORA BIA

Recherchez parmi les 1 page de la notice : Fiche technique Cuisinière BORA BIA pour trouver les informations qu'il vous manque. Vous ne trouvez pas les réponses à vos questions ? Réservez une vidéo assistance en moins de 2 minutes.

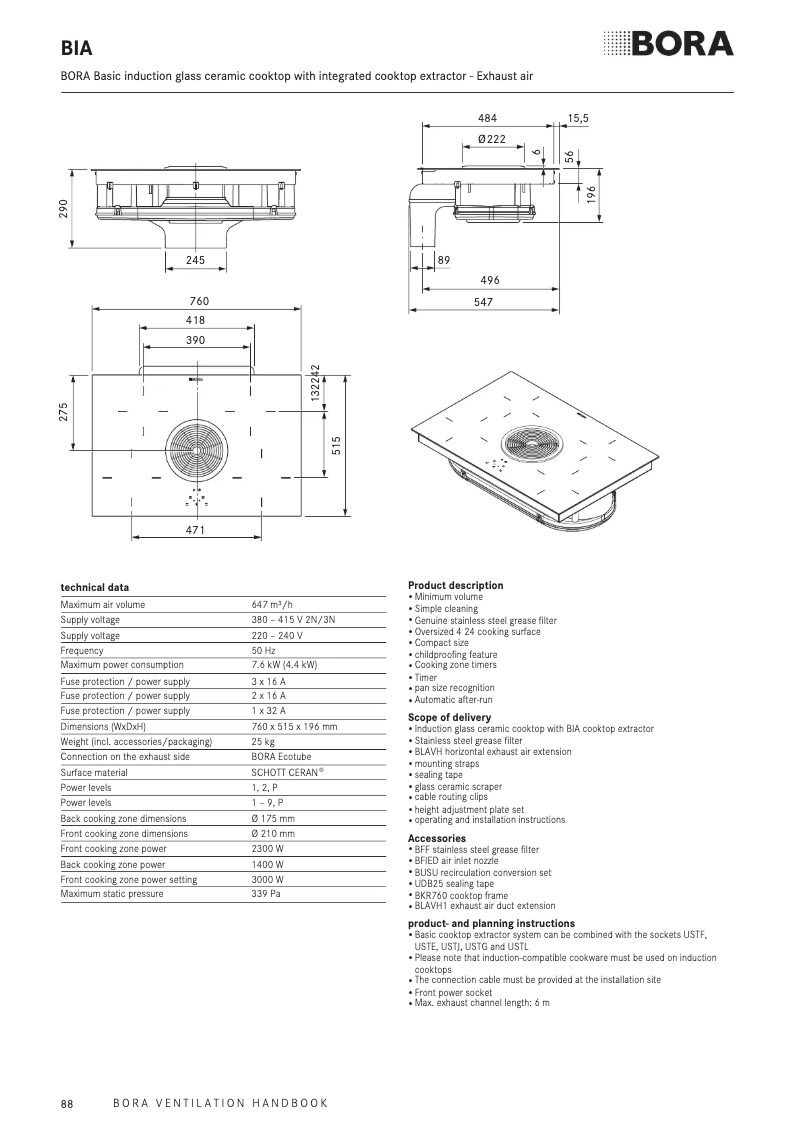
Caractéristiques

Marque BORA
Modèle BIA
Catégorie Appareils ménagers
Type de produit Cuisinière
Nombre de pages 1 Page
Type de fichier
Page / 1
Page n°1 - Fiche technique BORA BIA