Miniature du produit Dessin technique

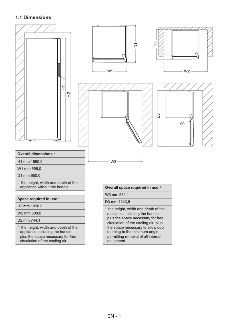
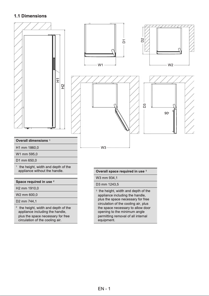
Dessin technique : Cylinda K4385NHE réfrigérateur

Cylinda Appareils ménagers Réfrigérateur

Recherchez parmi les 1 page de la notice : Dessin technique Réfrigérateur Cylinda K4385NHE pour trouver les informations qu'il vous manque. Vous ne trouvez pas les réponses à vos questions ? Réservez une vidéo assistance en moins de 2 minutes.

Caractéristiques

Marque Cylinda
Modèle K4385NHE
Catégorie Appareils ménagers
Type de produit Réfrigérateur
Nombre de pages 1 Page
Type de fichier
Page / 1
Page 1 de la notice Dessin technique Cylinda K4385NHE