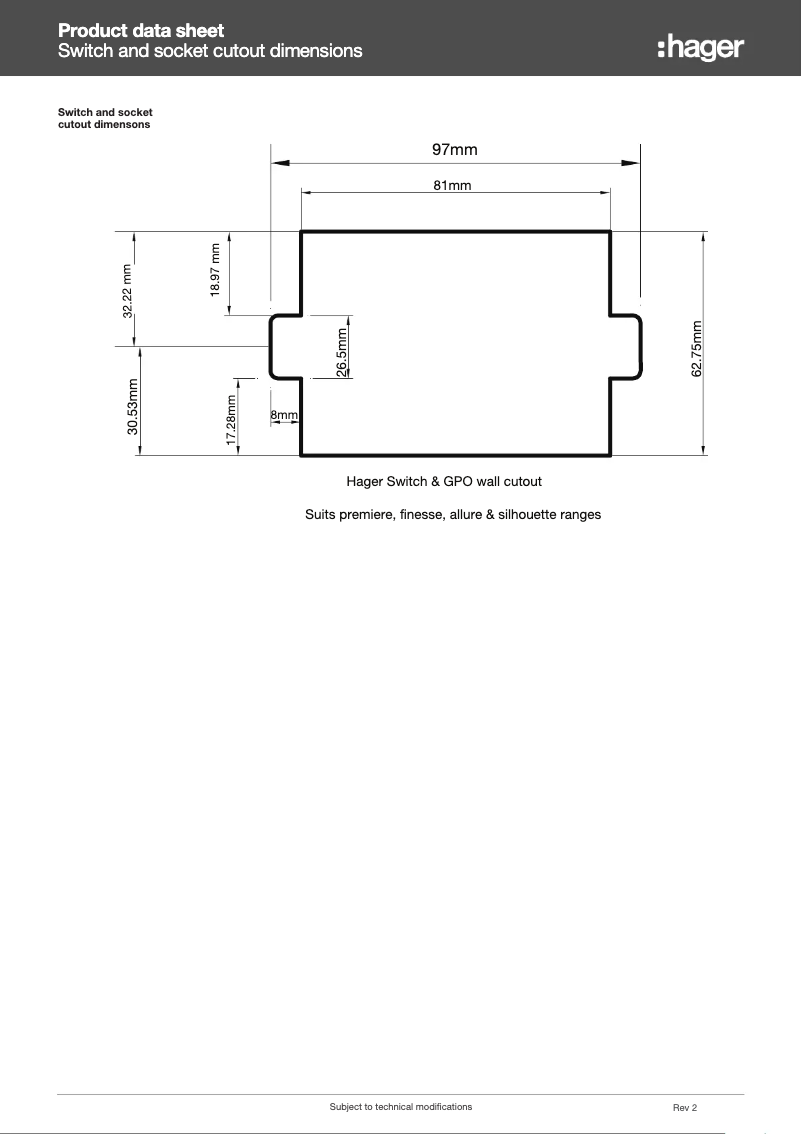
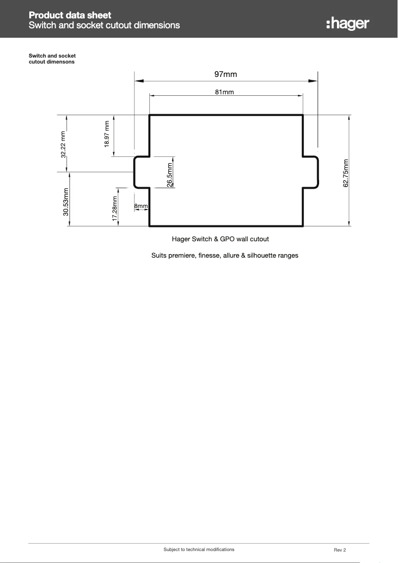
Présentation de la notice : Fiche technique Prise murale Hager WBWSV1
Recherchez parmi les 1 page de la notice : Fiche technique Prise murale Hager WBWSV1 pour trouver les informations qu'il vous manque. Vous ne trouvez pas les réponses à vos questions ? Réservez une vidéo assistance en moins de 2 minutes.
Caractéristiques
Marque | Hager |
Modèle | WBWSV1 |
Catégorie | Electroménager |
Type de produit | Prise murale |
Nombre de pages | 1 Page |
Type de fichier |
