Caractéristiques
| Marque | Hager |
| Modèle | WBWSV3LFH |
| Catégorie | Electroménager |
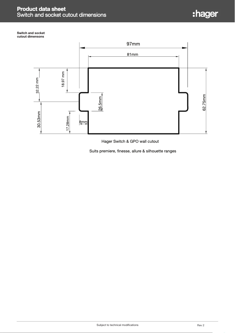
| Type de produit | Prise murale |
| Nombre de pages | 1 Page |
| Type de fichier |
Page
/ 1