Présentation de la notice : Guide d'installation Hotte Robinhood RO61SS/WH/80
Recherchez parmi les 10 pages de la notice : Guide d'installation Hotte Robinhood RO61SS/WH/80 pour trouver les informations qu'il vous manque. Vous ne trouvez pas les réponses à vos questions ? Réservez une vidéo assistance en moins de 2 minutes.
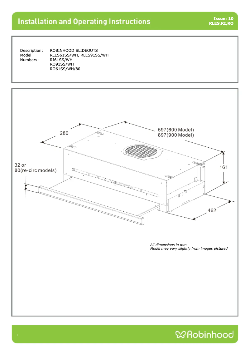
Caractéristiques
Marque | Robinhood |
Modèle | RO61SS/WH/80 |
Catégorie | Appareils ménagers |
Type de produit | Hotte |
Nombre de pages | 10 Pages |
Type de fichier |
