Miniature du produit Manuel de l'utilisateur

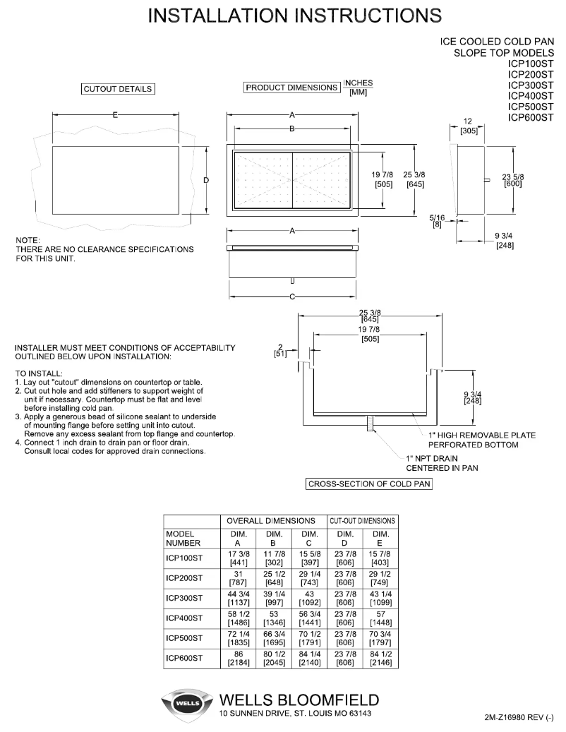
Manuel de l'utilisateur : Wells ICP400ST réfrigérateur

Wells Appareils ménagers Réfrigérateur

Recherchez parmi les 1 page de la notice : Manuel utilisateur Réfrigérateur Wells ICP400ST pour trouver les informations qu'il vous manque. Vous ne trouvez pas les réponses à vos questions ? Réservez une vidéo assistance en moins de 2 minutes.

Caractéristiques

Marque Wells
Modèle ICP400ST
Catégorie Appareils ménagers
Type de produit Réfrigérateur
Nombre de pages 1 Page
Type de fichier
Page / 1
Page 1 de la notice Manuel utilisateur Wells ICP400ST