Miniature du produit Kimberley Mk2 de la marque Jindara
Logo de la marque Jindara

Chauffage Jindara Kimberley Mk2

De quoi avez-vous besoin ?

En validant, je déclare accepter sans réserve les Conditions Générales et la Politique de confidentialité de wenony.ch. En validant les informations, je confirme commander un contrat WeNony Premium au tarif de 0,90 CHF le premier mois, puis au tarif de 49,00 CHF par mois avec un engagement de 12 mois. Je confirme être habilité à engager l’entreprise dans ces conditions.

Présentation du produit Chauffage Jindara Kimberley Mk2

Le Kimberley Mk2 est un produit de la catégorie Jardin et extérieur, plus précisement du type Chauffage. Nous avons référencé 1 mode d'emploi du type Manuel utilisateur pour le produit Chauffage Jindara Kimberley Mk2. Nous avons également référencé 5 specifications pour le produit Chauffage Jindara Kimberley Mk2. Vous avez une question sur le produit Jindara Kimberley Mk2 et vous ne trouvez pas la réponse dans le(s) mode(s) d'emploi ? N'hésitez pas à nous contacter.

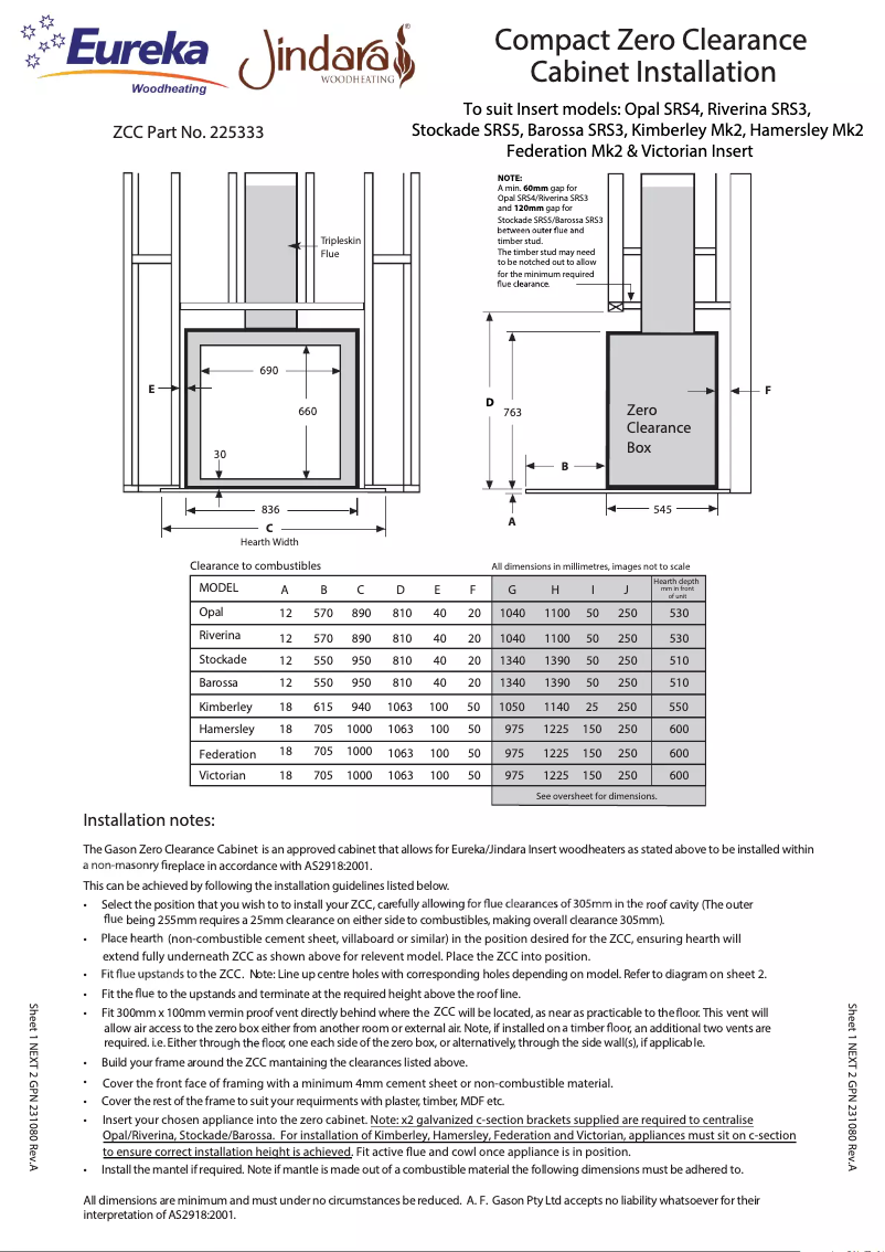
La notice du produit Kimberley Mk2

Spécifications techniques Kimberley Mk2

Généralités

Produits similaires


Découvrez la fiche technique du produit WH 2000 I de la marque Einhell et ses notices...
Notices disponibles :
Découvrez la fiche technique du produit Spectre de la marque Jindara et ses notices...
Notices disponibles :
Découvrez la fiche technique du produit Federation de la marque Jindara et ses notices...
Notices disponibles :
Découvrez la fiche technique du produit WW 2000 de la marque Einhell et ses notices...
Notices disponibles :
Découvrez la fiche technique du produit HZL 1800 de la marque Einhell et ses notices...
Notices disponibles :
Découvrez la fiche technique du produit Sorrento de la marque Jindara et ses notices...
Notices disponibles :
Découvrez la fiche technique du produit EH 2000 de la marque Einhell et ses notices...
Notices disponibles :
Découvrez la fiche technique du produit Mallee de la marque Jindara et ses notices...
Notices disponibles :
Découvrez la fiche technique du produit WW 1200 de la marque Einhell et ses notices...
Notices disponibles :
Découvrez la fiche technique du produit IH3000 de la marque Einhell et ses notices...
Notices disponibles :
Découvrez la fiche technique du produit Grange de la marque Jindara et ses notices...
Notices disponibles :
Découvrez la fiche technique du produit Sturt de la marque Jindara et ses notices...
Notices disponibles :

Plus de catégories de produit de la marque Jindara

Plus de type de produit de la marque Jindara

Présentation des spécificités du produit Kimberley Mk2 de la marque Jindara

Généralités

La marque du produit Jindara Kimberley Mk2 est Jindara. Cette marque est reconnue pour sa qualité et son innovation dans le domaine des appareils électroménagers. Le modèle du produit Jindara Kimberley Mk2 est Kimberley Mk2. Ce modèle garantit des performances optimales et une expérience utilisateur améliorée.